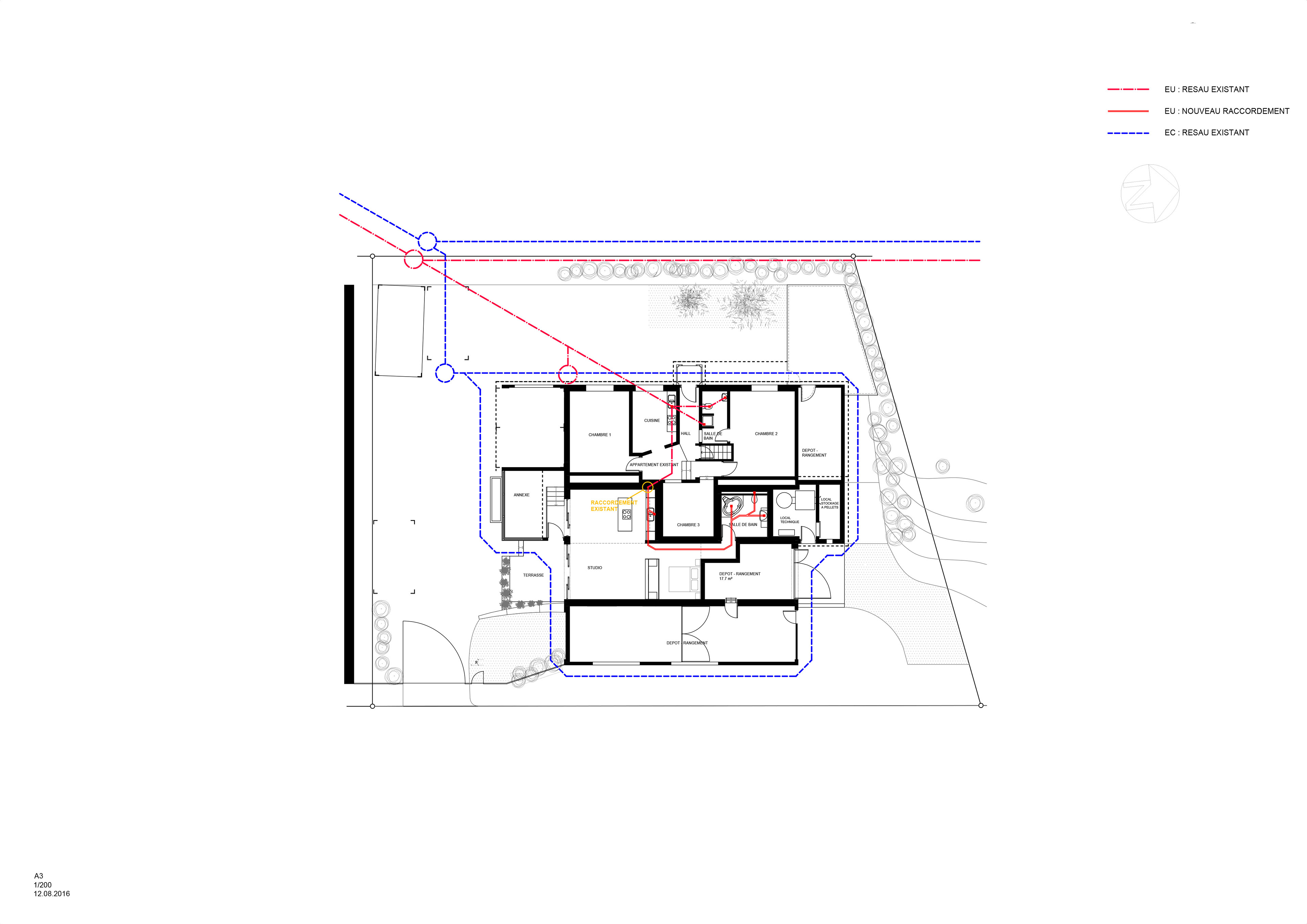
Prepared for submission to the municipality, this project involves the transformation of an old garage in Ecoteaux into a 120 m² contemporary loft, accompanied by a comprehensive building permit dossier. The intervention preserves the rural character of the existing structure, removes low-quality annexes, and reorganizes the main volume to meet modern residential requirements. With an open-plan interior layout, renewed façade openings, and upgraded technical infrastructure, the project creates a brighter, more livable, and energy-efficient home. By maintaining the building’s rural identity while adapting it to contemporary comfort standards, the transformation offers a high-quality architectural renewal for both the structure and its surroundings. In addition, the dossier includes detailed information on parcel relations and boundary conditions, connections to existing infrastructure networks (stormwater/sewage), demolition and reconstruction elements, new window and door openings, energy-performance improvements, as well as landscape and exterior arrangements, all documented through detailed drawings and technical reports. Préparé pour être soumis à la commune, ce projet concerne la transformation d’un ancien garage à Ecoteaux en un loft contemporain de 120 m², accompagné d’un dossier complet de mise à l’enquête. L’intervention préserve le caractère rural du bâtiment existant, supprime les annexes de faible qualité et réorganise le volume principal afin de répondre aux besoins résidentiels actuels. Grâce à un aménagement intérieur en plan libre, de nouvelles ouvertures en façade et une mise à niveau des infrastructures techniques, l’ensemble offre un espace de vie plus lumineux, confortable et économe en énergie. En conservant l’identité rurale du bâtiment tout en l’adaptant aux standards de confort contemporains, cette transformation propose une rénovation architecturale qualitative, bénéfique tant pour la construction que pour son environnement immédiat. Le dossier comprend également les relations parcellaires et limites de propriété, les raccordements aux réseaux existants (EC/EU), les éléments à démolir et à reconstruire, les nouvelles ouvertures de fenêtres et portes, les améliorations énergétiques ainsi que les aménagements extérieurs et paysagers, le tout présenté au moyen de plans détaillés et de rapports techniques destinés à l’examen municipal.
Maison Devaud
Transformation of an old garage into a loft Interior Area / 120 m² Client / M. Devaud Location / Ecoteaux Designers / Aydin Gürsel Bakir Year / 2017