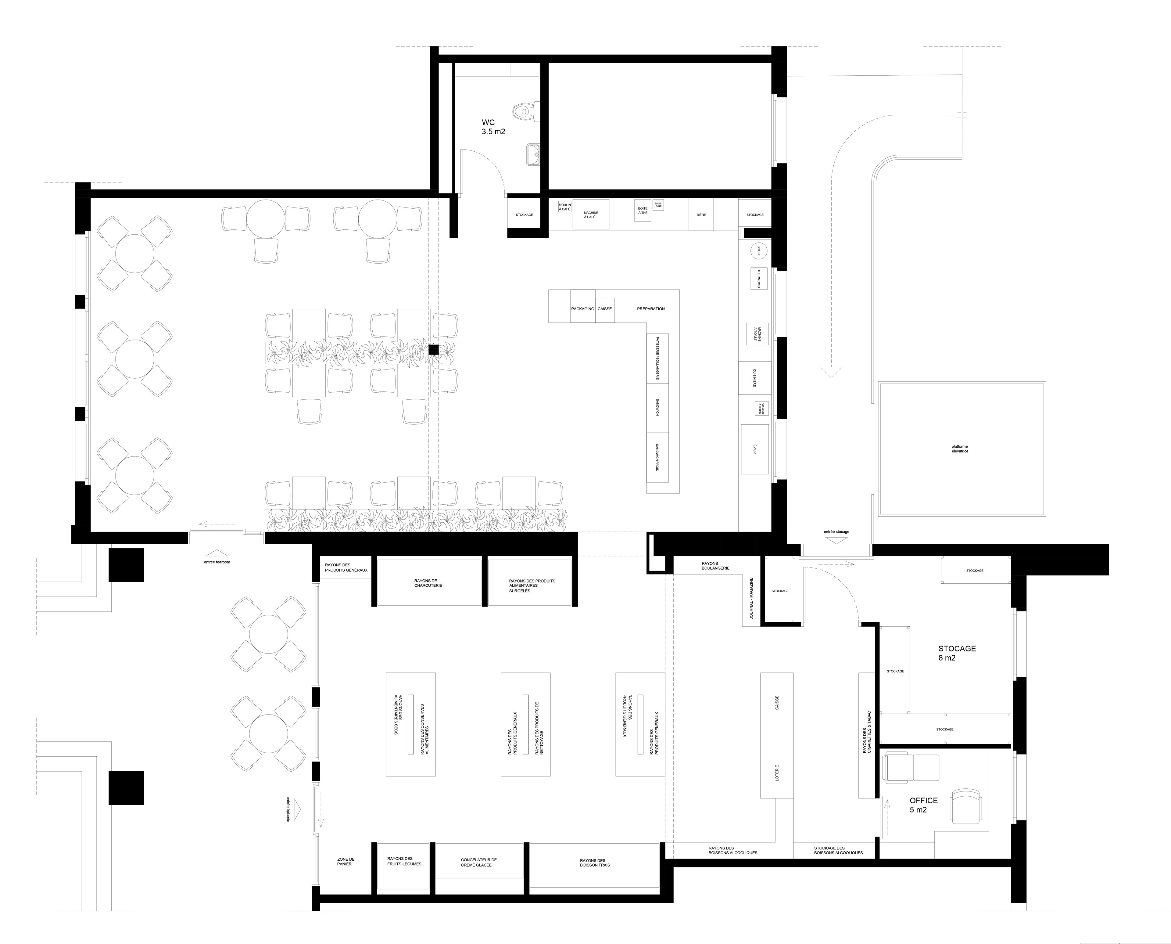
Located in Geneva, this multi-programmatic interior layout uniting the functions of a boulangerie and an épicerie within a single spatial continuum presents an atmosphere where vibrant turquoise tones are balanced with warm wooden surfaces. Open display units in the boulangerie area and linear shelving systems in the épicerie zone allow the two distinct programs to merge within a cohesive and fluid circulation scenario. Enhanced by plant shelves, rhythmic lighting elements, and terrazzo flooring, the composition lends the space an energetic yet refined identity, elevating it into a modern neighborhood meeting point. Située à Genève, cette configuration intérieure multi-programmatique réunissant les fonctions de boulangerie et d’épicerie dans une même continuité spatiale offre une atmosphère où les tons turquoise vifs se mêlent à la chaleur des surfaces en bois. Les unités d’exposition ouvertes du côté boulangerie et les rayonnages linéaires de l’espace épicerie permettent aux deux programmes distincts de se fondre dans un scénario de circulation fluide et cohérent. Enrichie par des étagères végétales, un éclairage rythmique et un sol en terrazzo, la composition confère au lieu une identité à la fois énergique et raffinée, faisant de cet espace un véritable point de rencontre moderne du quartier.
Marmotte 333
Location / Geneva Interior Area / 233 m² Client / N.Horuz Designer / Aydin Gürsel Bakir Partner / Hestia Group SA Year / 2020