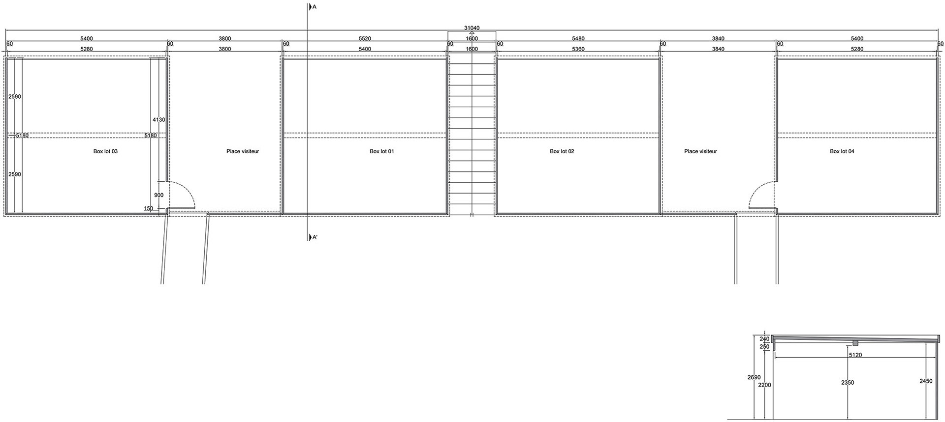
This carport design, defined by its simple geometry and natural material palette, aims to create a sheltered and refined space for vehicle storage. The timber cladding and horizontal lines allow the structure to blend harmoniously with its surroundings, while the wide openings ensure easy maneuverability and practical daily use. The result is a modern outdoor solution that combines functionality with a clean architectural expression. Ce carport, caractérisé par une géométrie simple et une sélection de matériaux naturels, vise à offrir un espace abrité et épuré pour le stationnement des véhicules. Le revêtement en bois et les lignes horizontales permettent à la structure de s’intégrer harmonieusement dans son environnement, tandis que les larges ouvertures assurent une utilisation pratique et une manœuvrabilité aisée. L’ensemble constitue une solution extérieure moderne qui allie fonctionnalité et expression architecturale sobre.
Carport
Location / Arzier Le-Muids Project Area / 67 m² Client / Damien Mastelli Designer / Aydin Gürsel Bakir Partner / Hestia Group SA Year / 2020