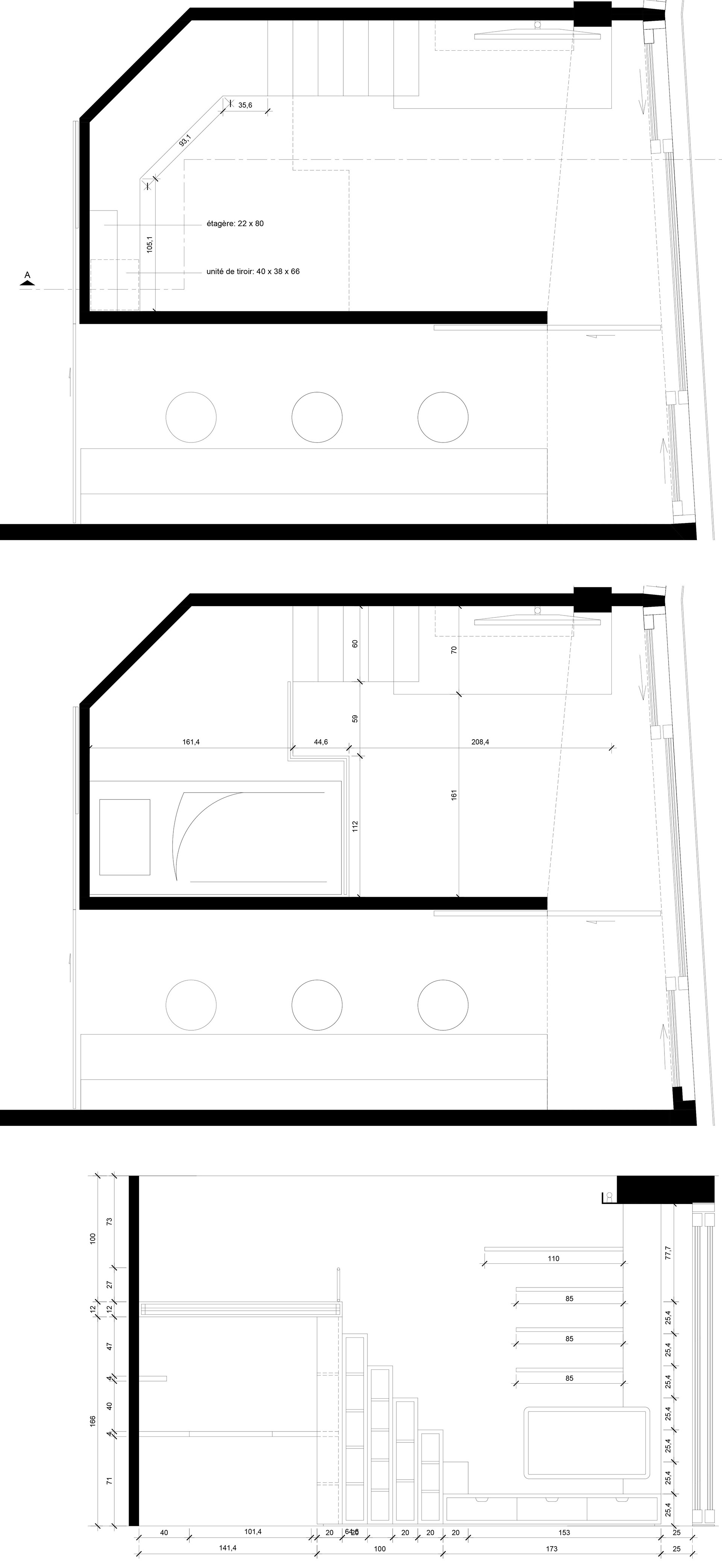
This project involves the transformation of an existing spacious living room to incorporate a children’s room and a compact home office. The original volume provided the flexibility needed to generate two additional independent spaces without compromising the openness of the plan. The design approach focuses on establishing both functional and spatial continuity among the three areas. Sliding panel doors allow the living room, children’s room, and office to connect seamlessly when needed, creating a fluid and extended living environment. Conversely, the same system enables each room to be fully enclosed, ensuring privacy whenever required. In the children’s room, the elevated bed structure defines a workspace underneath, while integrated wall storage elements maintain a clean and orderly atmosphere. A material palette dominated by natural wood surfaces creates a warm and calming ambiance throughout the spaces, while the use of minimal and contemporary furnishings reinforces the project’s refined character. The result is a cohesive interior design that maximizes the potential of the original volume and adapts effortlessly to various daily living scenarios. Ce projet consiste en la transformation d’un vaste salon existant afin d’y intégrer une chambre d’enfant et un espace de travail compact. Le volume initial offrait la flexibilité nécessaire pour créer deux nouvelles pièces indépendantes, tout en conservant la générosité du plan. L’approche architecturale vise à établir une continuité à la fois fonctionnelle et spatiale entre ces trois zones. Grâce aux panneaux coulissants, le salon, la chambre d’enfant et le bureau peuvent être reliés de manière fluide, formant un ensemble ouvert et traversant. À l’inverse, le même système permet de cloisonner chaque pièce pour garantir l’intimité lorsque cela est nécessaire. Dans la chambre d’enfant, la structure du lit en hauteur définit un espace de travail en partie basse, tandis que les rangements intégrés le long des parois assurent une atmosphère ordonnée et épurée. La palette matérielle, dominée par des surfaces en bois naturel, confère une ambiance chaleureuse et apaisante, tandis que le mobilier minimaliste et contemporain renforce le caractère sobre et raffiné du projet. Il en résulte un aménagement intérieur cohérent, exploitant pleinement le potentiel du volume existant et s’adaptant aisément aux différents scénarios de la vie quotidienne.
Project Matile
Location / Neuchâtel Interior Area / 13 m² Client / Rudy Architects Designer / Aydin Gürsel Bakir Partner / Hestia Group SA Year / 2020