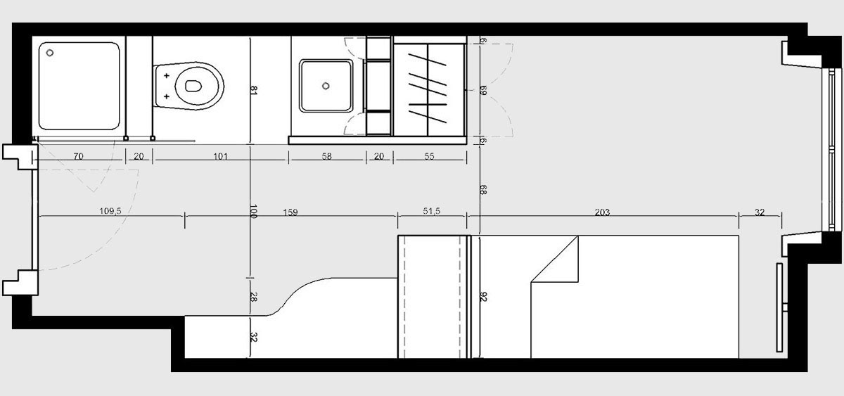
Location / Geneva Client / Hotel Tor SA Area / 13 m² Designer / Aydin Gürsel Bakir Partner / Renovotel SA Year / 2013